全国服务热线:13832329805

您的位置: 主页 > 腾博tengbo9885官网型号 > G系列砂砾泵 >
?

全国服务热线

销售①部:13832329805
销售②部:18031108870
销售③部:13393215309
传真:0311-83050889
地址:河北省石家庄市桥西区槐安西路260号
  • ·恭喜山西大同污水处理厂王经理订购30台AH系列腾博tengbo9885官网 正在排产中;??·恭喜云南昆明大型洗煤厂张经理订购26台ZJ系列腾博tengbo9885官网 正在排产中
  • ·恭喜陕西西安大型洗煤厂李经理订购28台ZJ系列腾博tengbo9885官网 正在排产中;??·恭喜湖南长沙污水处理厂潘经理订购22台ZJG压滤机泵 正在排产中
  • ·恭喜宁夏银川大型选矿厂孙经理订购1200套腾博tengbo9885官网配件 已安排发货;??·恭喜浙江杭州电力行业钱经理订购30台SP系列液下腾博tengbo9885官网 正在排产中
  • ·恭喜辽宁大连抽沙行业王经理订购10台大型砂砾泵整机 正在排产中;??·恭喜四川眉山污水处理厂白经理订购30台10/8AH腾博tengbo9885官网 正在排产中

GH砂砾泵

应用范围:

GH砂砾泵广泛应用于选矿、冶金、煤炭、电力、石油、化工、挖沙、城市排污、环保等行业。

参数范围:

【扬程】:5-80m

【流量】:36-4320m?/h


点击获取选型报价 选型报价热线
13393215309

腾博tengbo9885官网说明 / Explain

GH砂砾泵特点:G/GH型砂砾泵是引进技术产品,该泵采用了以卡带连接的单泵壳结构,为单级单吸悬臂式离心泵,具有重量轻,汽蚀性能好,抗磨蚀性强,过流通道宽,安装使用方便等优点,可对大颗粒强磨蚀泥砂连续输送,适用于挖泥船挖泥,采砂船抽沙,疏浚河道。
GH砂砾泵结构:该系列砂砾泵由泵头,密封组件,轴承组件,托架等组成,轴承润滑方式为油脂润滑。过流部件叶轮,泵体,前护板,后护板均采用强抗磨高铬合金或耐磨合金钢,硬度不低于58HRC。
GH砂砾泵密封形式:填料密封、副叶轮密封、填料加副叶轮密封、机械密封等型式。
GH砂砾泵传动方式:V型三角带传动、弹性联轴器传动、齿轮减速箱传动、液力偶合器传动、变频驱动装置,可控硅调速等。采用多种速度和多种变型方式,使得泵在最佳工况下运行。使用寿命长,运行效益高,能满足多类恶劣的输送条件。

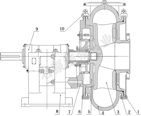
腾博tengbo9885官网结构图 / Structure

G砂砾泵结构图

 

1、泵盖

2、 前护板

3、 叶轮

4、 泵体

5、后护板

6、填料箱

7、安装板

8、托架

9、 轴承组件

10、卡箍带
 

 


腾博tengbo9885官网性能参数表 / Parameter

 型号  允许配带最大功率P(KW)  流量Q(m³/h)  扬程H(m) 转速n(r/min)  最高效率η%   汽蚀余量NPSH(m) 叶轮直径 D(mm)
 6/4D-G  4-60  36-250  5-52  600-1400 58   2-5.5  378
 8/6E-G 15-120  126-576  6-45  600-1400  60  3-4.5  391
 10/8S-G  30-560  216-936  8-52  500-1000  65 3-7.5  533
 10/8S-GH  45-560  180-1100 24-80  500-950  72  2.5-5  711
 10/8F-G  15-560  216-936  8-52  400-800  65  3-7.5  533
 12/10F-G  600  360-1440  10-60  350-700  65  1.5-4.5  667
 12/10G-G  600  360-1440  8-60  400-800  65  1.5-4.5  667
 12/10G-GH  600  360-1580  16-80  350-700  73  2-10  950
 14/12G-G  600  576-2808  14-45  300-700  68  2-8  864
 16/14G-G  1200  720-3600  18-45  300-500  70  3-9  1016
 18/16G-G  1200  720-4320  12-48  250-500  72  3-6  1067


TAG标签: 卧式腾博tengbo9885官网 砂泵 抽沙泵 G砂砾泵 GH砂砾泵 抽砂泵
本文由石家庄腾博tengbo9885官网厂家编写,原创不易,转载请注明出处:http:/gshalibeng/gghshalibeng.html


?

Copyright © 2002-2020 石家庄石泵腾博tengbo9885官网业有限公司 版权所有 →侵权必究← 备案号:冀ICP备15020164号

在线客服
热线电话
腾博tengbo9885官网厂家电话